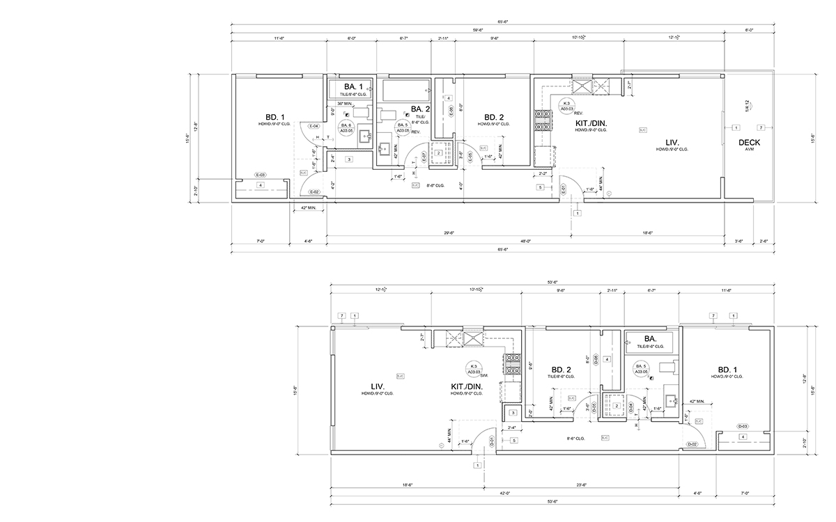
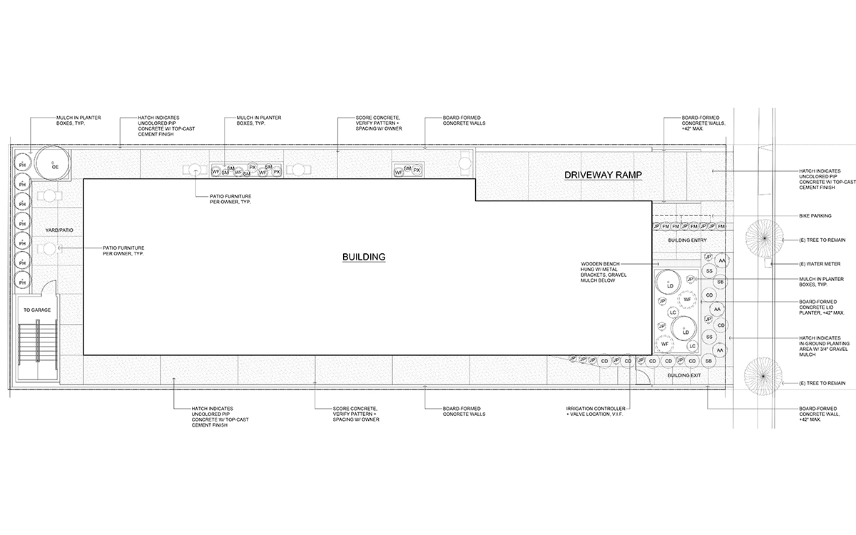
__ HYPERION 2

seventeen apartments 
transit oriented development / haul route
14,900 square feet total / 7,300 square foot site
silver lake / los angeles / CA / US
architecture / landscape





copyright © 2025, green city building company. all rights reserved.