__ HYPERION 1

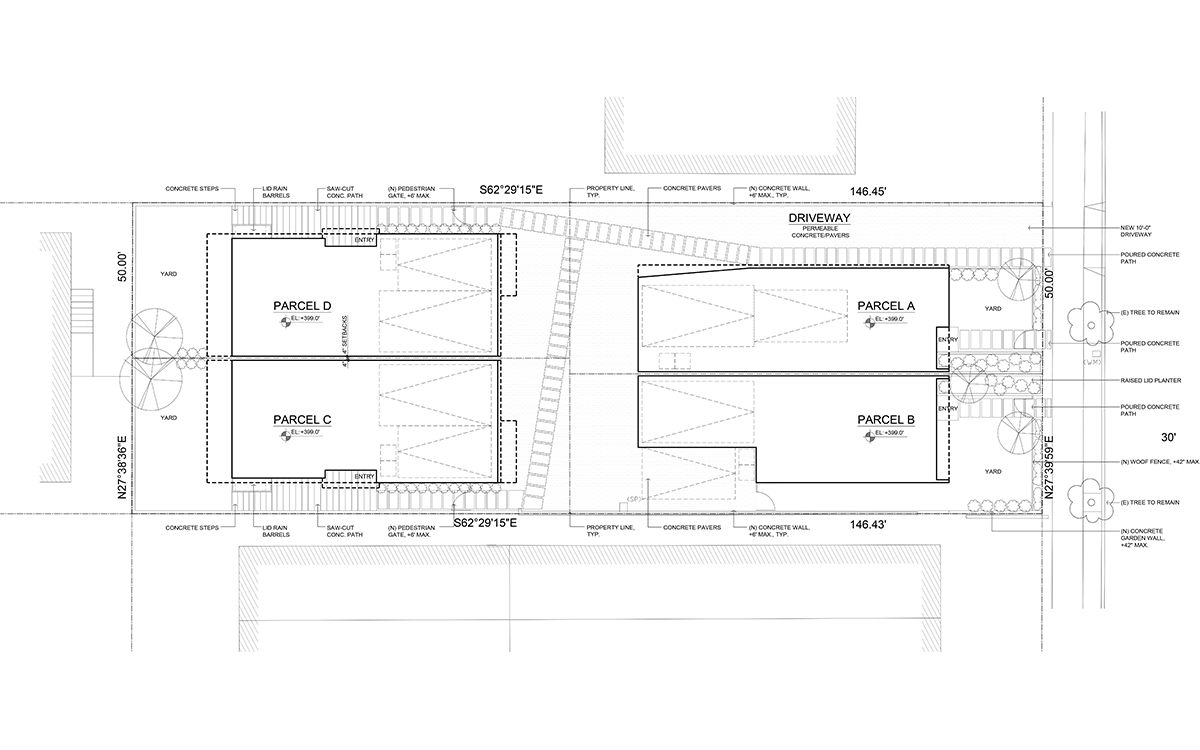
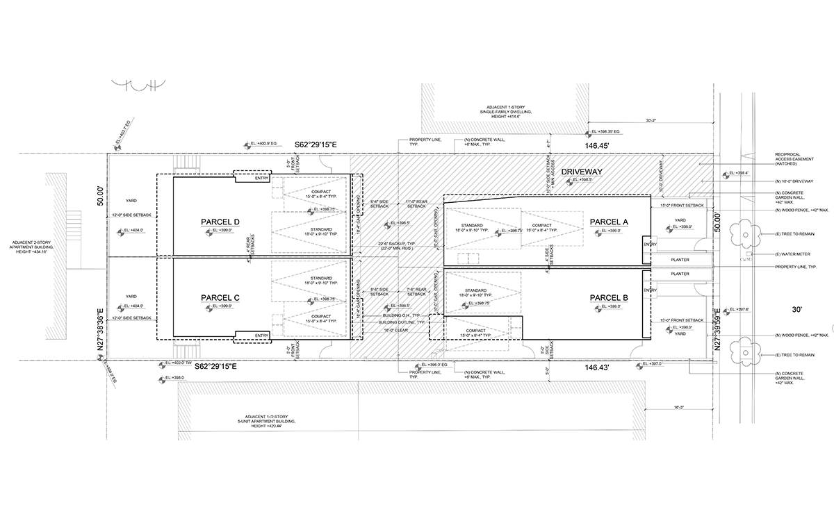
four single family houses 
small lot subdivision
7,100 square feet total / 7,300 square foot site
silver lake / los angeles / CA / US
architecture




copyright © 2025, green city building company. all rights reserved.