__ GLENALBYN

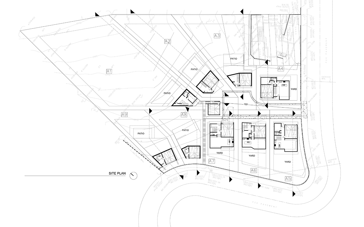
nine single family houses
subdivision / historic preservation overlay zone / specific plan area / haul route
19,900 square feet total / 85,700 square foot site
mount washington / los angeles / CA / US
architecture





copyright © 2025, green city building company. all rights reserved.