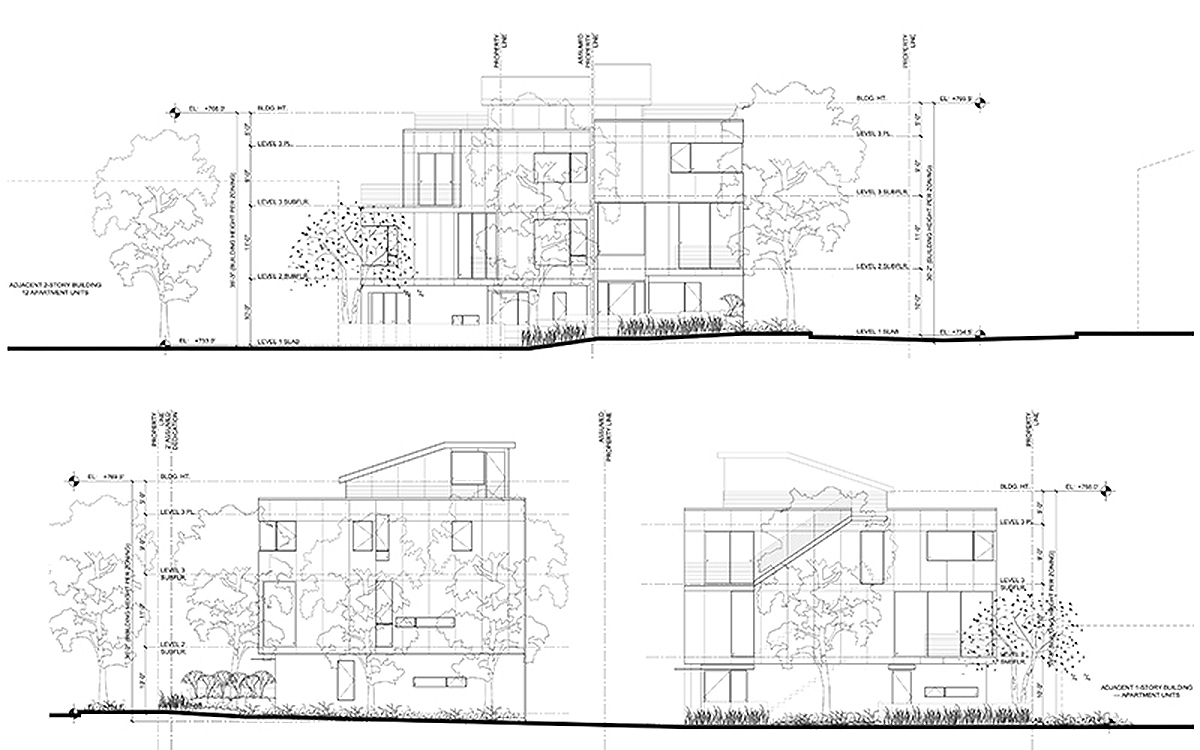
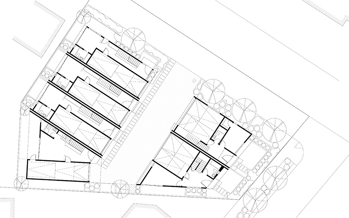
__ EAGLE VISTA

six single family residences
small lot subdivision 
12,500 square feet total / 11,800 square foot site
eagle rock / los angeles / CA / US
architecture
















copyright © 2025, green city building company. all rights reserved.